Last year, Balot said he would await outcome of hotel lawsuits before going ahead with plans

The developer of a 112-room hotel on Siesta Key, which the Sarasota County Commission approved in October 2022, is appealing to the current board members to direct county staff to allow him to proceed with the next steps in the construction process, even though litigation over hotels on the island remains underway.
Matt Osterhoudt, director of the county’s Planning and Development Services Department, is recommending that the County Commission uphold his decision to put a hold on the process “until legal appeals are complete.”
On Aug. 29, during the commissioners’ first regular meeting since they began its traditional four-week summer vacation, the public hearing is scheduled as the final business matter on the agenda, No. 80.
The board will be conducting the session at the R. L. Anderson Administration Center in Venice, which stands at 4000 S. Tamiami Trail.
The meeting will begin at 9 a.m.
On June 6, Osterhoudt wrote the attorney representing developer Dave Balot, in response to the attorney’s inquiry about the status of the site development application for the hotel. A copy of the letter is in the agenda packet.
Explaining that he is the administrator of the county’s Unified Development Code (UDC), which contains all of the county’s land-use and zoning regulations, Osterhoudt explained, “[A] decision has been made to not process the [site and development] application any further until such time as a final determination has been made” regarding the ordinance the commissioners approved on Oct. 27, 2021, No. 2021-047. That modified the UDC to eliminate the counting of hotel rooms for residential density purposes throughout most of the county.
Prior to that action, the UDC prohibited more than 26 hotel rooms per acre on property zoned Commercial General, and only if the majority of those rooms had no kitchens.
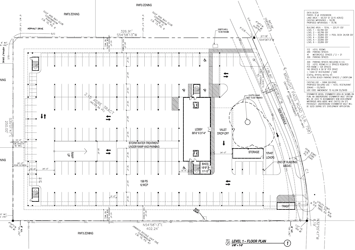
Balot’s hotel site, comprising 2.15 acres at 5810 Midnight Pass Road, would encompass six stories with a maximum height of 59 feet, according to testimony during the Oct. 26, 2022 public hearing on his application. The first two floors would have parking spaces.
The property was home for many years to a Wells Fargo Bank.
Balot — through his limited liability company ABC SUB2 — had submitted a petition for two Special Exceptions. The first sought approval for “transient accommodations” — county staff’s term for hotel and motel rooms — on his Commercial General (CG) property; the second, to exceed the maximum 35-foot height on a CG parcel.
The commissioners seated at that time — including Alan Maio, who was term-limited; Commissioner Christian Ziegler, who chose not to seek re-election last year to the District 2 seat; and the late Commissioner Nancy Detert — voted unanimously to approve Balot’s petitions.
In early June, when Osterhoudt responded to Balot’s attorney, Scott E. Rudacille of Blalock Walters in Bradenton, Osterhoudt noted only that Ordinance 2021-047 “is the subject of an appeal with the First District Court of Appeal [in Tallahassee] in the case styled as Sarasota County v. Ramirez.”
As The Sarasota News Leader has reported, a Florida administrative law judge ruled for Ramirez in April, following a November 2022 hearing on a challenge Ramirez filed in early 2022 with the Florida Division of Administrative Hearings (DOAH). Ramirez has contended that the County Commission violated Future Land Use (FLU) Policy 2.9.1 of the county’s Comprehensive Plan — which guides growth in the community — in approving Ordinance 2021-047. She has emphasized that that policy limits the intensity and density of residential development on Siesta Key to that in place as of March 13, 1989.
On June 13, the commissioners voted 4-1 to appeal the administrative law judge’s decision. Commissioner Mark Smith of Siesta Key, who won his seat in the November 2022 General Election, cast the “No” vote, saying that former County Attorney Frederick “Rick” Elbrecht had told him that Elbrecht felt the county had only about a 10% chance of winning on appeal.

This week, Ramirez won a parallel case that she filed in the 12th Judicial Circuit Court in Sarasota in November 2021. Like Administrative Law Judge Suzanne Van Wyk, Circuit Judge Hunter Carroll agreed that the County Commission had violated FLU Policy 2.9.1. (See the related article in this issue.)
In his June 6 letter to Rudacille, Osterhoudt further noted that, in accord with Section 124-41(d) of the UDC, “a decision of the Administrator regarding Site Development Plan applications shall be final, provided that the owner or applicant may, within thirty (30) days of said decision, appeal it to the [commission] for relief.”
Osterhoudt then wrote that if Rudacille wished to pursue such an appeal, he should “send written confirmation to [Osterhoudt’s] office and the next step would be a duly noticed public hearing.”
As a county document explains, a “Site and Development Plan shall be required for all development other than the creation of a subdivision. … Approval of the Plan by the County shall be construed as authority for the representative/applicant to: a. construct improvements such as stormwater facilities, excavation and fill, bulkheads, sidewalks, paving; and b. apply for building permits.”
The developer works with county staff on that process after receiving formal approval of a proposed project. Site and development entails a thorough review of all facets of the plans, ensuring they comply with county regulations.
The formal appeal
On July 5, Rudacille filed notice of the appeal with the County Commission, on Balot’s behalf.
He explained that the Special Exceptions that the commissioners approved on oct. 26, 2022 will expire two years from that date if work on the hotel has not begun. Thus, he added, the County Code “requires the Applicant to timely proceed with permitting and development following approval.”
On Dec. 22, 2022, Balot submitted his application “for approval of a Site and Development Plan for the [hotel]. The County accepted this application,” Rudacille continued, “and the applicable filing fee.” Then, in January of this year, Rudacille indicated, county staff “provided its initial completeness review of the application,” giving Balot “a list of required revisions.” Balot resubmitted the application to the county on April 20, with the revisions, Rudacille pointed out. Then, on April 27, he wrote, the application was marked “Insufficient until further notice.”

Subsequently, he continued, Osterhoudt sent the project team his June 6 letter.
“While we appreciate staff’s desire to manage the uncertainty created by the [Ramirez] litigation … we are not aware of any authorization in the UDC for staff to refuse to process a development application,” Rudacille wrote. Further, he noted, Section 125.022(1) of the Florida Statutes “has mandated that the County process applications for a development permit within specified timeframes. Under the statute, the County is required to review a development permit application for completeness and provide a list of deficiencies within 30 days of submittal (or resubmittal),” he pointed out.
After the application has been deemed complete, Rudacille continued, county staff has 120 days, according to the state law, “to approve, approve with conditions, or deny the application …”
Rudacille pointed out that Balot “is certainly aware of the [Ramirez] litigation” and the fact that it could affect the validity of the Oct. 27, 2021 ordinance. Balot “is pursuing this Application at [his] own risk and with the full understanding that any approval of the Application by the County could ultimately be invalidated by subsequent judicial action. However,” Rudacille added, “unless and until there is a binding judicial determination of this effect, the Applicant should be allowed to proceed with further permitting at its own risk,” based upon the County Commission’s vote in October 2022.
“Should the Board deem it necessary or appropriate,” Rudacille continued, “[Balot] has previously offered to acknowledge [his] assumption of this risk in a stipulation to be included in the approval of the Application, and [he] remains agreeable to such a stipulation.”
That stipulation would read as follows:
“The Applicant acknowledges that pending civil and administrative actions may affect the validity of Sarasota County Ordinance 2021-047, which Ordinance serves as the basis for certain aspects of the subject site and development plan approval. The County reserves the right to modify or revoke the approval as may be necessary to conform to its legal obligations under any binding administrative or judicial decisions issued pursuant to such actions, provided the Applicant shall, to the extent applicable, be given the opportunity to amend the application to conform to the requirements of such decisions.”
In August 2022, shortly before the county’s Planning Commission was scheduled to conduct its hearing on Balot’s plans for the hotel, The Sarasota News Leader asked the Planning and Development staff why Balot’s application was moving to that public hearing stage, given not only the Ramirez case but a second lawsuit, which focused on both the Calle Miramar hotel and a second hotel that the commission approved — in November 2021. That was a seven-story, 120-room project on south Siesta Key; the developer is Siesta businessman Gary Kompothecras.

Responding to that question, Michele Norton, assistant director of Planning and Development wrote of Balot, “The applicant is fully aware of the existing legal challenges and desires to move forward with their petition for consideration … and assuming any risk if Sarasota County does not prevail in litigation.”
The News Leader also contacted Balot about his decision to proceed with the public hearing. He wrote in an Aug. 15, 2022 email that If the County Commission ended up approving his application, he planned to await the resolution of the lawsuits, which would determine whether he would have to submit a proposed amendment to the county Comprehensive Plan to make his project possible. If so, he added, he would resubmit the amendment that his team drafted before filing his original application, in the spring of 2021.
That 2021 Comprehensive Plan amendment called for the doubling of the residential density standard existing at that time for hotel and motel rooms on property zoned Commercial General in the Siesta Key Overlay District zoning regulations, Balot pointed out. Instead of 26 hotel rooms per acre, up to 52 per acre would be allowed, the amendment proposed.
The applicable law
A county staff memo, provided under the authority of Osterhoudt of Planning and Development and included in the Aug. 29 County Commission meeting packet, explains that county staff consulted with the Office of the County Attorney on “applicable case law” in regard to how to handle Balot’s Site and Development application.
“Ordinarily,” the memo says, “a change in the law which occurs while an application for a permit or license is pending” controls the handling of that application. “[T]he law as changed, rather than as it existed at the time [the] application was filed, determines whether the permit or license should be granted.” That was part of the decision in the 1980 Florida First District Court of Appeal case State Dep’t of Envtl. Reg. v. Oyster Bay Estates, Inc., the memo explained.
“Here, the Amended Final Order constituted that change in the law,” the memo pointed out. It was referring to the administrative law judge’s April ruling in favor of Ramirez.
However, the memo continued, “There is a caveat to this case law.”

If an order is not appealed during the time allowed for such action, the memo says, then that order cannot be appealed at a later point.
That was the ruling in a 1991 Florida Fourth District Court of Appeal case, City of Plantation v. Vermut, the memo noted, with a companion decision in a 2001 Florida First District Court of Appeal case, Kirby v. City of Archer.
In Sarasota County’s situation, the memo added, the developers of the first two high-rise hotels on Siesta Key have appealed the administrative law judge’s final order to the First District Court of Appeal. “Thus,” the memo said, the administrative law judge’s Final Order “is not binding authority …”
Finally, the memo explains that an approved site and development plan for the Balot property “would allow for the commencement of site work, such as but not limited to earthwork and underground infrastructure installation, or continuation to building permitting. [Site and development] permitting does not allot for conditions or stipulations that would allow review and acceptance without issuance [of the permits] as these are civil plans. For these reasons,” the memos says, Osterhoudt “held up the application as incomplete.”
Three cheers for Osterhoudt, who has the good sense to see the effort “to get the camel’s nose under the tent!”